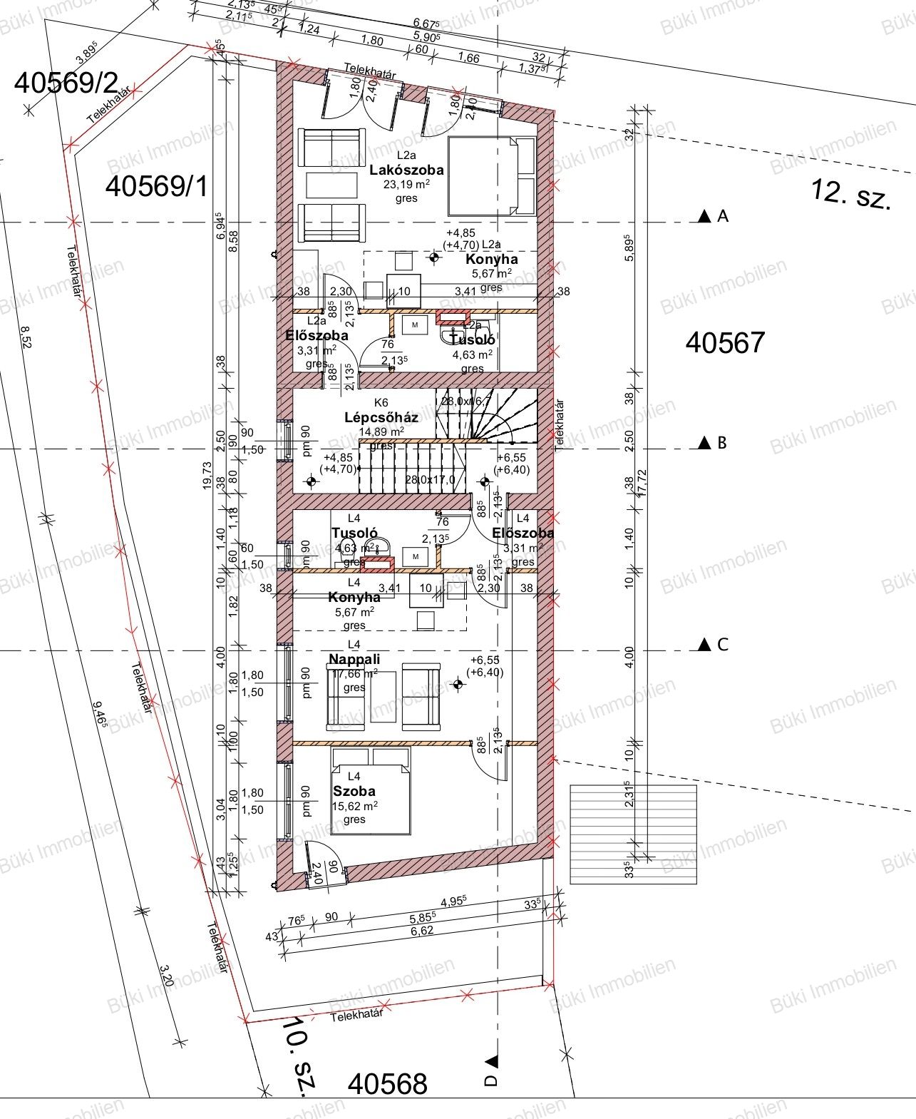
- alapterület: 37
- telek mérete: 0
- szobaszám: 1
- félszoba: 0
- emelet: 2
- épület szintjei: 3
- belső szintek száma: 3
- tégla épület
- hőszivattyú fűtésű
- padló-fűtésű
- parkolás teremgarázsban
INGATLAN LEÍRÁSA
Képzelje el, hogy Pécs Belvárosa szomszédságában, egy frekventált utcában új építésű lakás várja, amely egyszerre kínál álomotthont családosoknak és lenyűgöző befektetési lehetőséget! Ha egy gyorsan megtérülő ingatlanra vágyik, itt a tökéletes választás, ez a lakás azonnal kiadható, akár szobánként is, hiszen minden szoba külön nyílik. A mindössze 10 perces sétára található egyetem vonzereje miatt a befektetők számára igazi kincs: ideális rövid távú szálláskiadáshoz, például turistáknak, vagy hosszútávú bérléshez hallgatóknak. A praktikus elrendezés, az újszerű állapot és a kivételes lokáció együtt garantálja, hogy befektetett pénze rövid időn belül kamatostul térüljön meg, ezen a környéken az ingatlanok szinte azonnal kiadhatók!
Ez az otthon családosok és egyetemisták számára egyaránt csábító: a közelben lévő egyetem lehetővé teszi, hogy a hallgatók saját szobában tanulhassanak, szabadon választva csoporttársaikat, elkerülve a kollégiumok zsúfoltságát. A modern hőszivattyús központi hűtő-fűtő rendszer és a padlófűtés ideális hőmérsékletet biztosít, míg a korszerű energetikai megoldások a rezsiköltséget minimálisra csökkentik, egy fenntartható és kényelmes jövő várja Önt! A fedett, zárt garázs (8 000 000 Ft) és a külön tároló (800 000 Ft) pedig tökéletes biztonságot nyújt autójának és értékei tárolására.
Merüljön el ebben a sokoldalú lakásban, ahol a napfény és a gondosan megtervezett tér barátságos hangulatot teremt. Legyen szó családi életről vagy üzleti lehetőségről, ez az ingatlan minden igényt kielégít, és kiemelkedően jó helyen fekszik a belvárosi pezsgés és a nyugalom tökéletes egyensúlyában. Ne hagyja ki, hívjon most, és tegye valóra álmait, mielőtt más él ezzel a kivételes ajánlattal!




